Free account required
Unlock the full potential of your property search with a free account! Here's what you'll gain immediate access to:
- Exclusive Access to Every Listing
- Personalized Search Experience
- Favorite Properties at Your Fingertips
- Stay Ahead with Email Alerts





$749,000
8305 18 Avenue
Coleman, Alberta, Alberta, T0K0M0
MLS® Number: A2198257
Property description
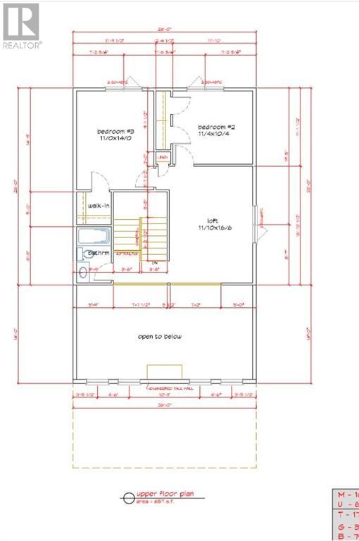
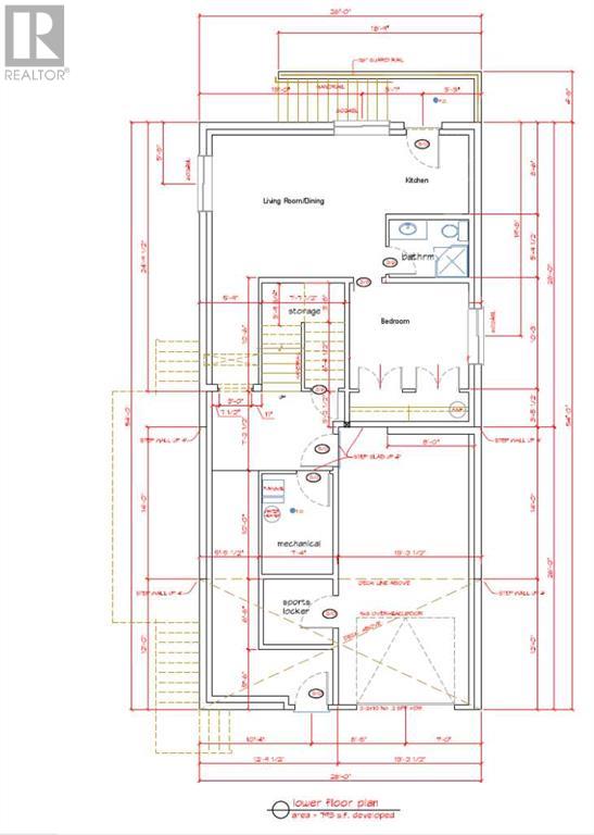
EXCEPTIONAL new mountain home under construction in Crowsnest Pass with an approved secondary suite. 3 bedrooms and 2.5 bathrooms above, as well as 1 bedroom/one bathroom in the lower-level apartment. Open floor plan with high ceiling in the living areas to take advantage of big windows and majestic mountain views. Very high-quality construction with impeccable attention to detail throughout the entire building process. Modern kitchen with quartz counters. This home is finished top to bottom. Two laundry areas. Each floor has its own heating/cooling controls. Outstanding appliance package. The purchase price includes GST. Crowsnest Pass is a vibrant, active community close to Castle Mountain and Fernie Ski resorts, incredible Nordic ski facilities, and hundreds of miles of backcountry adventures.
Building information
Type
*****
Age
*****
Appliances
*****
Basement Features
*****
Basement Type
*****
Constructed Date
*****
Construction Style Attachment
*****
Cooling Type
*****
Fireplace Present
*****
FireplaceTotal
*****
Flooring Type
*****
Foundation Type
*****
Half Bath Total
*****
Heating Fuel
*****
Heating Type
*****
Size Interior
*****
Stories Total
*****
Total Finished Area
*****
Land information
Amenities
*****
Fence Type
*****
Size Depth
*****
Size Frontage
*****
Size Irregular
*****
Size Total
*****
Rooms
Main level
6pc Bathroom
*****
2pc Bathroom
*****
Kitchen
*****
Living room/Dining room
*****
Lower level
4pc Bathroom
*****
Living room/Dining room
*****
Kitchen
*****
Second level
Bedroom
*****
Bedroom
*****
Loft
*****
4pc Bathroom
*****
Courtesy of ROYAL LEPAGE SOUTH COUNTRY - Crowsnest Pass
Book a Showing for this property
Please note that filling out this form you'll be registered and your phone number without the +1 part will be used as a password.